
Bau eines Doppelhauses in Stephanskirchen
Bauen in Bayern ist leider oft sehr teuer. EFH kosten schnell über 1 Mio und Doppelhäuser oft über 800.000 Euro . Wir zeigen, dass es auch bezahlbar geht.
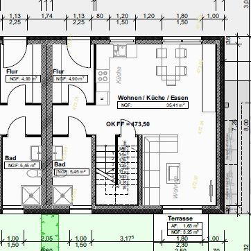
Aktuell laufen unsere Planungen für unser eigenes Projekt in Stephanskirchen bei Rosenheim. Es entstehen 2 DHH energieeffizient und kostengünstig.
Wir werden unser Projekt in jeder Phase dokumentieren. Sie wollen auch kosteneffizient bauen, dann schreiben Sie uns gern an für mehr Informationen.

Pressemitteilung
Es ist für "Normalverdiener" kaum noch möglich sich ein Eigenheim zu finanzieren. Es werden Preise verlangt, die nicht mehr finanzierbar sind.
An diesem Punkt waren auch wir. Aber aufgeben war keine Option und so haben wir uns intensiv mit dem Thema Bauen auseinandergesetzt und auch über die Landesgrenzen hinaus geschaut, wie man dort baut und ob man die Vorteile auch auf die strengen deutschen Vorgaben und Vorschriften übertragen kann. Mit Erfolg....entstanden ist ein Konzept das eine Mischung aus Fertighausbau, Stahlbau und konventionellen Bau ist. Wir alle kennen den über Jahrhunderte bewährten Fachwerkbau...das ist die Basis, jedoch für die Haltbarkeit nicht aus Holz, sondern aus Stahl. Stahl wird ja bekanntlich im Stahlbetonbau bei Grossprojekten verwendet. Bisher zu aufwendig für den Einfamilienhausbau. Doch jetzt können die Vorteile erfolgreich übertragen werden. In Kombination mit hochwertigen Materialien für die Aussenhülle, Dämmung und natürlich moderner Technik wird der Hausbau schon fast revolutioniert. Und das beste sind die günstigen Baukosten.
Aktuell in Planung befinden sich unsere Doppelhaushälften in Stephanskirchen bei Rosenheim

Fachwerk so stabil wie noch nie
Unser Baukonzept mit modernster Technologie, kosteneffizient, langelebig, stabil

Stepahnskirchen -
unser aktuelles Projekt

Obergeschoss
Wohlfühlen auf rund 100qm, alles was man braucht, modern. Perfekt für Paare und die kleine Familie .
